Block: Høringer
Høringer (Ikke migreret endnu)

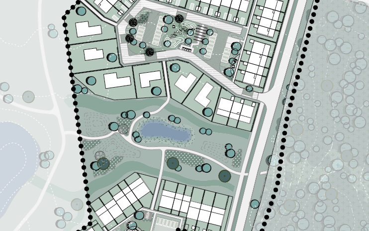
Forslag til lokalplan 742 for Skousbo, etape 2.2
Plan- og Teknikudvalget har på sit møde den 2. december 2025 vedtaget at fremlægge forslag til lokalplan 742 for Skousbo, etape 2.2 til offentlig høring.
Høring af Tillæg nr. 3 til Spildevandsplan 2023-27: Regnvandshåndtering i Nymarken, Gammel Viby
Roskilde Kommune fremlægger forslag til tillæg til spildevandsplanen vedrørende regnvandshåndtering for kloakopland 12.2 i 8 ugers offentlig høring
Landzonetilladelse til tre mindre søer - Ølmosevej 2
Roskilde Kommune har meddelt landzonetilladelse til tre mindre søer på Ølmosevej 2, 4621 Gadstrup, matr.nr. 7d, 7k og 5c Ramsømagle By, Gadstrup
Landzonetilladelse til garage på Brordrupvej 24C
Roskilde Kommune har meddelt landzonetilladelse til en garage på Brordrupvej 24C, Kamstrup, 4000 Roskilde, matr.nr. 4e Kamstrup By, Vor Frue
