
Aaben Dans får mere plads
Egnsteatret Aaben Dans, som holder til på Rabalderstræde 10 på Musicon, får nu sin længe planlagte udvidelse.
Nyhed
Foto fra venstre: Det første spadestik blev taget af: formand for Kultur- og Idrætsudvalget, Mogens Hallager, direktør for Aaben Dans, Lisbeth Klixbüll, direktør i Krogstrup Tømrer og Snedker, Morten Lynge Nielsen, borgmester Tomas Breddam og kunstnerisk leder for Aaben Dans, Thomas Eisenhardt.
Egnsteatret Aaben Dans, som holder til på Rabalderstræde 10 på Musicon, får nu sin længe planlagte udvidelse.
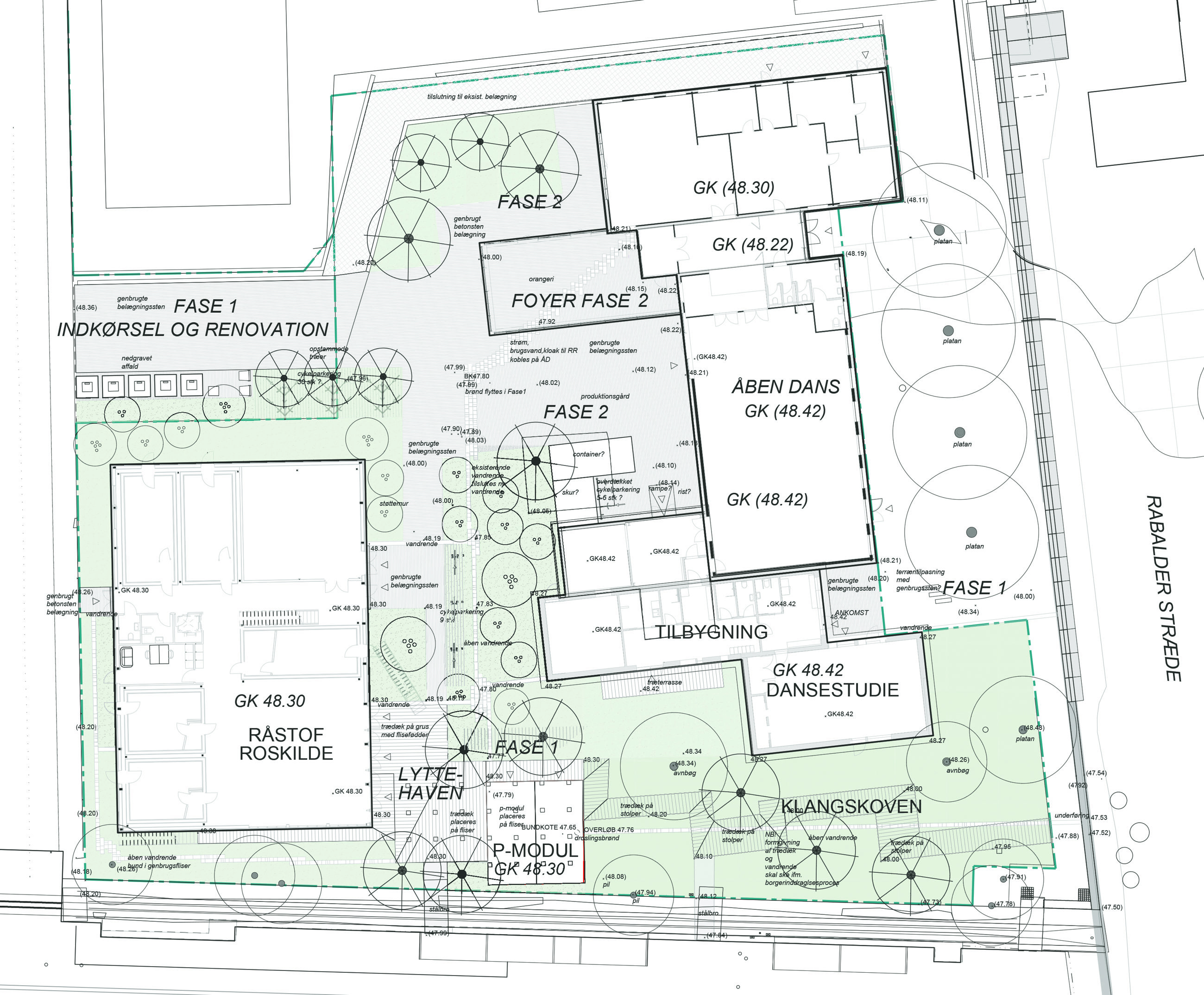
De eksisterende bygninger får tilføjet et nyt dansestudie og mere lagerplads. Senere kommer også et nyt udendørs publikumsområde.
Arbejdet er færdigt i løbet af foråret 2026.
Bagefter starter byggeriet af nye øvelokaler mv. til foreningen Råstof Roskilde og af legepladsen ”Klangskoven”.
Meget af byggeriet vil ske med genbrugte materialer.

